023_FAL_07.jpg
1   2   3   4   5   6   7   8   9   10   11  

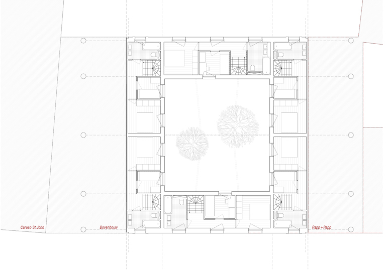
project: Tuincarré: 6 single family houses, Antwerp (B)
client: CIP N.V.
statics: Establis
installations: Ingenium
collaboration: redevelopment urban block Falconplein-Zeemanshuis with Caruso St John, Bovenbouw, ONO Architectuur, Rapp+Rapp and Landinzicht
project state: tender