Ninove03.jpg
1   2   3   4   5   6   7   8   9   10   11  

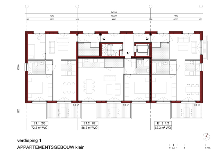
project: sociale appartementen en woningen, Pollarewijk in Ninove (B)
stedebouw- en architectuurwedstrijd
opdrachtgever: Ninove Welzijn
samenwerking: META architectuurbureau bvba, Raven Rumes Stedenbouw
datum: 12/2013